搜索长租房源
按线路・车站搜索
按市区町村搜索
按所需时间搜索
按地图搜索
按学校名搜索
按关键字搜索
搜索月租房源
搜索历史记录
喜欢的
菜单
宫城县
黑松车站
包括管理费/物业费
无押金/礼金
0件
无礼金
无需中介费
1R
1K
1DK
1LDK
2K
2DK
2LDK
3K以上
在线咨询・契约
租金, 中介手续费, 押金, 礼金
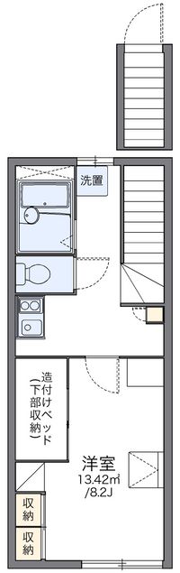
格局, 面积, 号室
格局图
免费一个月
¥37,000
中介手续费 无需押金 无需 / 礼金 1个月
¥49,000
¥40,000
¥41,000
双重折扣
¥42,000
中介手续费 无需押金 无需 / 礼金 无需
¥50,000
¥65,000
致未找到理想房源的客户