日本語
レオパレス上町 区画図レオパレス上町 外観レオパレス上町 駐車場
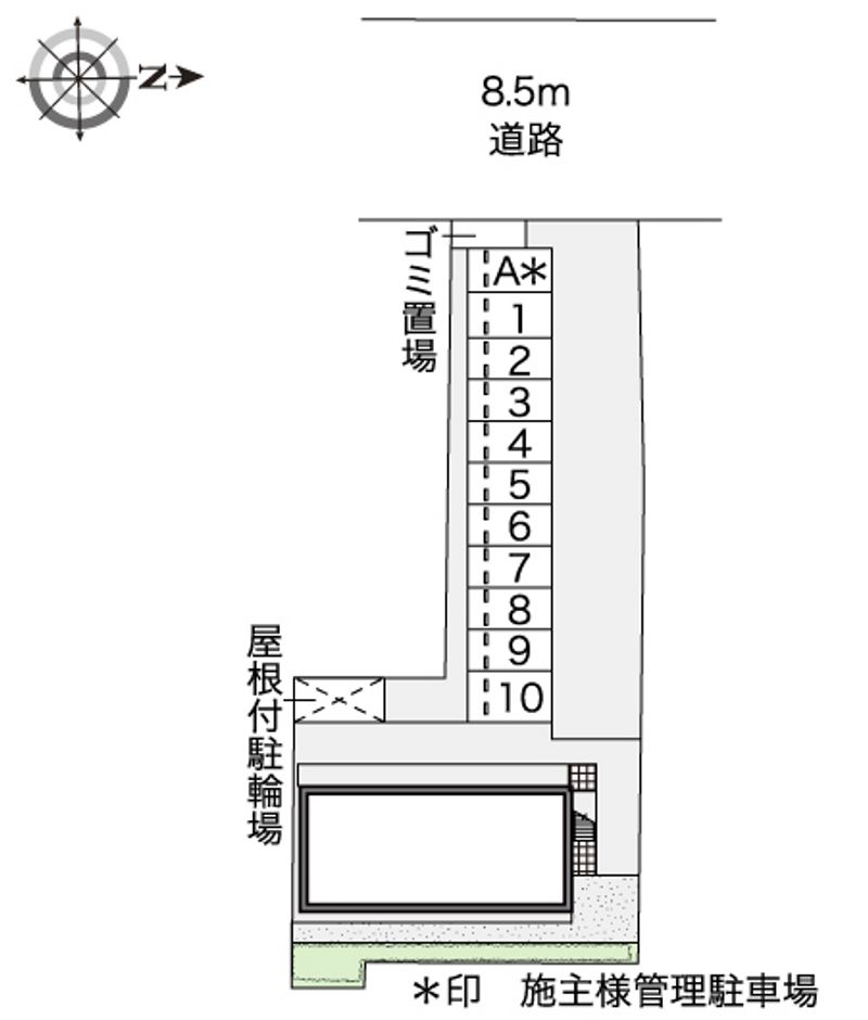
レオパレス上町 区画図
レオパレス上町 外観
レオパレス上町 駐車場

レオパレス上町月極駐車場

入居者

5,500(残り2枠)

非入居者

契約できません

    • 2025年12月29日〜利用可
    • 鳥取県鳥取市上町21−5
    • 山陰本線「鳥取駅」バス16分 谿樗公園やまびこ館前下車 徒歩2分

この市区町村で駐車場を探している人が1週間以内に 0名 います!

住所

鳥取県鳥取市上町21−5

  • 情報公開日:2025/12/29

  • 情報更新予定日:2025/12/30

お問い合わせ

掲載駐車場に関するご質問やご相談など、お気軽にお問い合わせください。

メールでお問い合わせ
050-3652-6138050-3652-6138

アパート番号44990

お問い合わせ先

  • 名称

    レオパレス21 コンタクトセンター
  • 所在地

    東京都中野区本町3-30-4
  • 電話番号

  • 電話番号

  • 営業時間

    10:00 - 18:00
  • 免許番号

    国土交通大臣免許(12)第2846号
  • 所属団体

    (公財)日本賃貸住宅管理協会 (公社)全国賃貸住宅経営者協会連合会

掲載駐車場について

  • 「入居者」とはレオパレス21が管理を行っている物件に賃貸契約でご入居中のお客様に限ります。
  • マンスリー契約でご入居の方は、駐車場料金や契約方法が異なります。
  • ご希望の駐車場にご利用条件がある場合がございます。
  • ご契約可能な駐車場の区画数は、原則、お一人様につき1区画とさせていただきます。2区画以上のご契約を希望される場合は、担当店舗までお問い合わせください。