- 東京都東大和市立野2−11−5(地図)
- 多摩モノレール「上北台駅」徒歩5分|
- 多摩モノレール「桜街道駅」徒歩10分|
- 2階建てアパート / 2018年6月築|
- 1K|
- 25.89㎡|
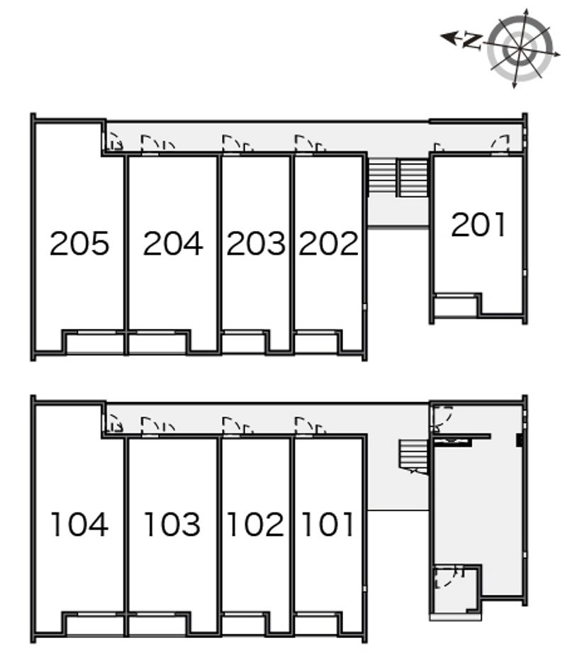
- 101号室|
この市区町村で物件を探している人が1週間以内に 0名 います!
おすすめポイント
- 敷金不要
設備
お部屋の詳細
住所
東京都東大和市立野2−11−5交通
多摩モノレール「上北台駅」徒歩5分 多摩モノレール「桜街道駅」徒歩10分間取り/面積
1K/25.89㎡家具・家電
有り建物構造
木造所在階/階数
1/2総戸数
9月極駐車場
空き無し火災保険
2年 13,130円~26,680円取引様態
直営店:貸主 パートナーズ:仲介現況
居住中種別/築年数
アパート/築7年(2018年6月)入居/引渡
-償却・敷引
-その他
諸費用
更新料
16,500円(税込)環境維持費
30日あたり550円(税込)鍵交換費/Smartlockシステム登録手数料
16,500円(税込)退去時清掃費
41,800円(税込)抗菌施工(任意)
18,040円〜23,760円(税込)入居者サポートシステムプラス(任意)
18,975円(税込)保証委託料(個人契約のみ)
利用料の100%~120%(契約時)/10,000円(2年目以降・年毎)インターネット利用料
インターネット利用不可
更新料
16,500円(税込)環境維持費
30日あたり550円(税込)鍵交換費/Smartlockシステム登録手数料
16,500円(税込)退去時清掃費
41,800円(税込)抗菌施工(任意)
18,040円〜23,760円(税込)入居者サポートシステムプラス(任意)
18,975円(税込)保証委託料(個人契約のみ)
利用料の100%~120%(契約時)/10,000円(2年目以降・年毎)インターネット利用料
インターネット利用不可
住所
東京都東大和市立野2−11−5
情報公開日:2026/04/04
情報更新予定日:2026/04/05
情報公開日:2026/04/04
情報更新予定日:2026/04/05
お申し込み・お問い合わせ
掲載物件に関するご質問の他、内見・ご相談など、お気軽にお問い合わせください。
お問い合わせ先
名称
レオパレス21 コンタクトセンター所在地
東京都中野区本町3-30-4電話番号
電話番号
営業時間
10:00 - 18:00免許番号
国土交通大臣免許(12)第2846号所属団体
(公財)日本賃貸住宅管理協会 (公社)全国賃貸住宅経営者協会連合会