日本語
レオネクストリヴェールⅢ 外観レオネクストリヴェールⅢ 間取りレオネクストリヴェールⅢ 配置図レオネクストリヴェールⅢ 間取り配置図レオネクストリヴェールⅢ 外観レオネクストリヴェールⅢ エントランスレオネクストリヴェールⅢ 共用部分レオネクストリヴェールⅢ 共用部分レオネクストリヴェールⅢ 周辺環境
レオネクストリヴェールⅢ 外観
レオネクストリヴェールⅢ 間取り
レオネクストリヴェールⅢ 配置図
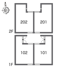
レオネクストリヴェールⅢ 間取り配置図
レオネクストリヴェールⅢ 外観
レオネクストリヴェールⅢ エントランス
レオネクストリヴェールⅢ 共用部分
レオネクストリヴェールⅢ 共用部分
レオネクストリヴェールⅢ 周辺環境

レオネクストリヴェールⅢ

  • 東京都葛飾区新宿2−8−16地図
  • 千代田・常磐緩行線「亀有駅」徒歩15分
  • 2階建てアパート / 2011年4月築

この市区町村で物件を探している人が1週間以内に 0名 います!

入居可能な部屋

    • 個人契約限定

    6万円

    (共益費 5,500円)

    仲介手数料 不要
    敷金 不要 / 礼金 1ヶ月

    • 1K
    • 23.68㎡
    • 101号室
    レオネクストリヴェールⅢ 間取り図
    レオネクストリヴェールⅢ 間取り図
    • 個人契約限定

    813,461 / 181日

    1日あたり4,494円Oランク
    • 1K
    • 23.68㎡
    • 101号室
    レオネクストリヴェールⅢ 間取り図
    レオネクストリヴェールⅢ 間取り図

住所

東京都葛飾区新宿2−8−16

  • 情報公開日:2026/01/05

  • 情報更新予定日:2026/01/06

  • 情報公開日:2026/01/05

  • 情報更新予定日:2026/01/06

周辺情報

    • イトーヨーカドーアリオ亀有店(334m)
    • セブンイレブン葛飾新宿4丁目店(353m)
    • マクドナルド亀有アリオ店(383m)
    • 31アイスクリームアリオ亀有店(398m)
    • 西友葛飾新宿店(462m)

お問い合わせ

掲載物件に関するご質問の他、内見・ご相談など、お気軽にお問い合わせください。

050-3652-6138050-3652-6138

アパート番号:47320

お問い合わせ先

  • 名称

    レオパレス21 コンタクトセンター
  • 所在地

    東京都中野区本町3-30-4
  • 電話番号

  • 電話番号

  • 営業時間

    10:00 - 18:00
  • 免許番号

    国土交通大臣免許(12)第2846号
  • 所属団体

    (公財)日本賃貸住宅管理協会 (公社)全国賃貸住宅経営者協会連合会

よくあるご質問

  • QレオネクストリヴェールⅢにはどのような借り方がありますか?
    A

    レオパレス21には賃貸契約とマンスリー契約があります。
    こちらより詳細をご確認ください。

  • QレオネクストリヴェールⅢの周辺には何がありますか?
    A

    レオネクストリヴェールⅢの周辺にはイトーヨーカドーアリオ亀有店があります。
    こちらより詳細をご確認ください。