- 東京都大田区東糀谷5−13−10(地図)
- 京浜急行電鉄空港線「大鳥居駅」徒歩13分|
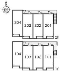
- 2階建てアパート / 2016年9月築|
この市区町村で物件を探している人が1週間以内に 0名 います!
入居可能な部屋
住所
東京都大田区東糀谷5−13−10
情報公開日:2026/04/15
情報更新予定日:2026/04/16
情報公開日:2026/04/15
情報更新予定日:2026/04/16
周辺情報
- セブンイレブン大田区東糀谷2丁目店(294m)|
- ファミリーマート大田東糀谷店(296m)|
- ローソン東糀谷一丁目店(388m)|
- セブンイレブン大田区大森南2丁目店(396m)|
- ライフ大森南店(403m)|
- セブンイレブン大田区仲糀谷店(414m)|
お問い合わせ
掲載物件に関するご質問の他、内見・ご相談など、お気軽にお問い合わせください。
お問い合わせ先
名称
レオパレス21 コンタクトセンター所在地
東京都中野区本町3-30-4電話番号
電話番号
営業時間
10:00 - 18:00免許番号
国土交通大臣免許(12)第2846号所属団体
(公財)日本賃貸住宅管理協会 (公社)全国賃貸住宅経営者協会連合会