賃貸物件を検索
路線・駅から検索
市区町村から検索
所要時間から検索
地図から検索
学校名から検索
キーワードから検索
マンスリー物件を検索
検索履歴
お気に入り
メニュー
島根県
乃木駅
1年以上ご利用の場合は賃貸からお探しください。
1R
0件
1K
1DK
1LDK
2K
2DK
2LDK
3K以上
オンライン相談・契約
賃料
間取り, 面積, 号室
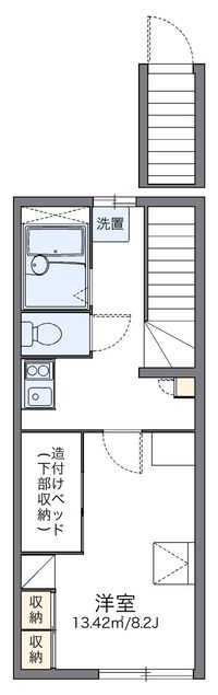
間取り図
157,300円 / 30日
161,700円 / 30日
理想のお部屋が 見つからないあなたへ