Tiếng Việt
LEONEXT Grandeur Pal Sơ đồ khu đấtLEONEXT Grandeur Pal Ngoại thấtLEONEXT Grandeur Pal Bãi đỗ xe
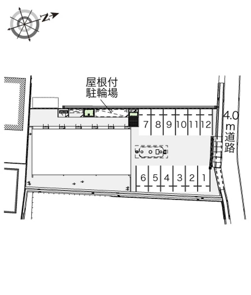
LEONEXT Grandeur Pal Sơ đồ khu đất
LEONEXT Grandeur Pal Ngoại thất
LEONEXT Grandeur Pal Bãi đỗ xe

LEONEXT Grandeur PalThuê bãi xe theo tháng

Người thuê nhà

3,850(Còn trống 7 chỗ)

Người không thuê nhà

Không thể ký hợp đồng

    • Ngày 21 Tháng 11 Năm 2025〜Có thể sử dụng
    • Kagawa-cho No 705,Takamatsu-shi,Kagawa-ken
    • Yosan line「Ga Takamatsu」 xe buýt 44 phút, Ono xuống xe đi bộ 14 phút

Có Tên 0 người đang tìm chỗ đậu xe ở thành phố này trong vòng một tuần!

Địa chỉ

Kagawa-cho No 705,Takamatsu-shi,Kagawa-ken

  • Ngày công bố: 2025/11/21

  • Ngày cập nhật thông tin:2025/11/22

Liên hệ

Vui lòng liên hệ với chúng tôi nếu có bất kỳ câu hỏi hoặc thắc mắc nào về bãi đậu xe của chúng tôi.

Yêu cầu qua email

Thông tin liên hệ

  • Tên

    Trung tâm liên hệ quốc tế của Leopalace21
  • Địa chỉ hiện tại

    2-54-5 Honcho, Nakano-ku, Tokyo Leopalace21 Tòa nhà phụ tầng 2
  • Số điện thoại :

  • Số điện thoại :

  • Thời gian kinh doanh

    10:00 - 18:00
  • Mã số bằng lái xe

    Bộ trưởng Bộ Giao thông đất nước cấp phép (12) số 2846
  • Tổ chức liên kết

    (Công tài) Hiệp hội Quản lý Nhà cho thuê Nhật Bản. (Tổ chức công cộng) Liên hiệp Hiệp hội Quản lý Nhà cho thuê Toàn quốc.

Về thông tin bãi đậu xe

  • “Cư dân” được giới hạn cho những khách hàng hiện đang sống trong các tòa nhà do Leopalace21 quản lý theo hợp đồng cho thuê.
  • Nếu bạn ký hợp đồng hàng tháng, phí đỗ xe và phương thức ký hợp đồng sẽ thay đổi.
  • Bãi đậu xe bạn mong muốn có thể kèm thêm các điều khoản khác.
  • Về nguyên tắc, mỗi khách hàng sẽ được ký một bãi đỗ xe. Nếu bạn muốn ký nhiều hơn 2 bãi, vui lòng liên hệ với cửa hàng phụ trách.