- Shimoniikura 5-16-7,Wako-shi,Saitama-ken(Bản đồ)
- Toeimita line「Ga Nishi-takashimadaira」đi bộ 21phút|
- Tobutojo line「Ga Wakoshi」đi bộ 27phút|
- Tobutojo line「Ga Narimasu」đi bộ 32phút|
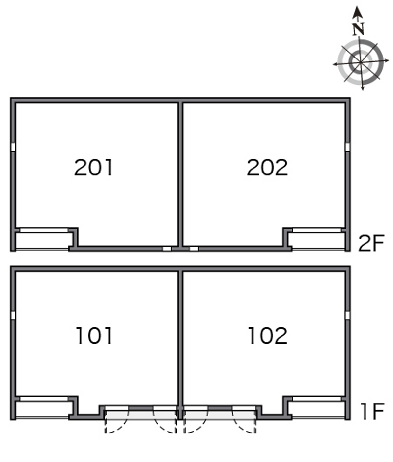
- Căn hộ 2 tầng / Xây dựng Tháng 11 Năm 2016|
Có Tên 0 người đang tìm kiếm nhà ở thành phố này trong vòng một tuần!
Phòng có thể vào ở
Địa chỉ
Shimoniikura 5-16-7,Wako-shi,Saitama-ken
Ngày công bố: 2026/01/10
Ngày cập nhật thông tin:2026/01/11
Ngày công bố: 2026/01/10
Ngày cập nhật thông tin:2026/01/11
Thông tin xung quanh
- Wako Hospital (194m)|
- Lawson Wako Hospital-mae (264m)|
- Lawson Wako Shimoniikura (296m)|
Yêu cầu
Vui lòng liên hệ với chúng tôi nếu bạn có bất kỳ câu hỏi nào về các tòa nhà được liệt kê, hoặc nếu bạn muốn xem một tòa nhà hoặc tham khảo ý kiến của chúng tôi.
Thông tin liên hệ
Tên
Trung tâm liên hệ quốc tế của Leopalace21Địa chỉ hiện tại
2-54-5 Honcho, Nakano-ku, Tokyo Leopalace21 Tòa nhà phụ tầng 2Số điện thoại :
Số điện thoại :
Thời gian kinh doanh
10:00 - 18:00Mã số bằng lái xe
Bộ trưởng Bộ Giao thông đất nước cấp phép (12) số 2846Tổ chức liên kết
(Công tài) Hiệp hội Quản lý Nhà cho thuê Nhật Bản. (Tổ chức công cộng) Liên hiệp Hiệp hội Quản lý Nhà cho thuê Toàn quốc.
Cấu hỏi thường gặp
- QCó những hình thức thuê nào theo LEONEXT Giardino A?A
Leopalace21 có hợp đồng thuê dài hạn và hợp đồng thuê theo tháng.
Để biết thêm chi tiết, vui lòng kiểm tra tại đây. - QXung quanh LEONEXT Giardino A có gì?A
Xung quanh LEONEXT Giardino A có Wako Hospital.
Để biết thêm chi tiết, vui lòng kiểm tra tại đây.