Tiếng Việt
CLEINO Sherlock Home Ngoại thấtCLEINO Sherlock Home Sơ đồ nhàCLEINO Sherlock Home Bản vẽ sơ đồ bố trí nhàCLEINO Sherlock Home Bản vẽ sơ đồ bố trí
CLEINO Sherlock Home Ngoại thất
CLEINO Sherlock Home Sơ đồ nhà
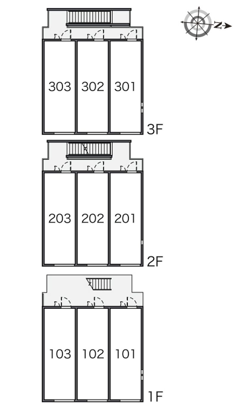
CLEINO Sherlock Home Bản vẽ sơ đồ bố trí nhà
CLEINO Sherlock Home Bản vẽ sơ đồ bố trí
  • Ký hợp đồng trực tuyến

CLEINO Sherlock Home Phòng 101

¥943,866 / Ngày 181

¥5,214 khoảng 1 ngàyS xếp hạng

Thay đổi thời gian sử dụng
Kiểm tra chi phí ban đầu
  • Jobankanko line「Ga Kameari」đi bộ 10phút
  • Căn hộ 3 tầng / Xây dựng Tháng 12 Năm 2015
  • 1K
  • 21.11㎡
  • Phòng 101

Có Tên 0 người đang tìm kiếm nhà ở thành phố này trong vòng một tuần!

Điểm đề xuất

  • Đồ nội thất và thiết bị có sẵn
  • Chuông cửa
  • Nhà tắm và nhà vệ sinh riêng biệt
  • Máy sấy phòng tắm
  • Nước nóng xả bồn cầu
  • Smartlock
  • Camera an ninh
  • Điều hòa không khí
  • Có Internet
  • Phòng góc

Thiết bị

  • Tắm · Nhà vệ sinh

    Nhà tắm và nhà vệ sinh riêng biệtMáy sấy phòng tắmNước nóng xả bồn cầuBồn rửa độc lập Chỗ để máy giặt trong phòng
  • Bảo vệ

    Camera an ninhChuông cửaSmartlock
  • Phát sóng · Truyền thông

    Có InternetLEONET
  • người khác

    Cấp nước nóng Điều hòa không khíBãi đậu xe đạp
  • Tắm · Nhà vệ sinh

    Nhà tắm và nhà vệ sinh riêng biệtMáy sấy phòng tắmNước nóng xả bồn cầuBồn rửa độc lập Chỗ để máy giặt trong phòng
  • Bảo vệ

    Camera an ninhChuông cửaSmartlock
  • Phát sóng · Truyền thông

    Có InternetLEONET
  • người khác

    Cấp nước nóng Điều hòa không khíBãi đậu xe đạp

Chi tiết phòng

  • Tên tòa nhà

  • Địa chỉ

    Nakagawa 2-5-12,Adachi-ku,Tokyo-to
  • Giao thông

    Jobankanko line「Ga Kameari」đi bộ 10phút
  • Thiết kế nhà/Diện tích

    1K/21.11㎡
  • Nội thất・Đồ gia dụng

  • Cấu trúc xây dựng

    Khung thép nặng
  • Vị trí tầng/Số tầng

    1/3
  • Tổng số phòng

    9
  • Thuê bãi xe theo tháng

    Không có
  • Bảo hiểm cháy nổ

    Bao gồm trong dịch vụ
  • Phương thức giao dịch

    Cửa hàng trực tiếp quản lý: bên cho thuê /Đối tác: trung gian ※ Không tính phí môi giới kể cả khi làm hợp đồng tại cửa hàng đối tác.
  • Tình trạng hiện tại

    Dự tính trả phòng
  • Phân loại/Số năm

    Căn hộ/Xây 10năm(Tháng 12 Năm 2015)
  • Vào nhà/Trao chìa khóa

    Ngày 24 Tháng 1 Năm 2026
  • Khấu hao・Phí không được trả lại khi ra khỏi nhà

    -
  • Khác

Chi phí

  • Phí thay chìa khóa/Phí smartlock

    ¥16,500(Đã bao gồm thuế)
  • Phí kháng khuẩn(Tùy chọn)

    ¥18,040 ~ ¥23,760(đã bao gồm thuế)
  • Phí internet

    ¥0
  • Phí phát sinh thêm người sống cùng

    ¥110/người/ngày (đã bao gồm thuế)
  • Phí điện nước gas

    Phí sử dụng ¥0 (đã bao gồm)
  • Phí thay chìa khóa/Phí smartlock

    ¥16,500(Đã bao gồm thuế)
  • Phí kháng khuẩn(Tùy chọn)

    ¥18,040 ~ ¥23,760(đã bao gồm thuế)
  • Phí internet

    ¥0
  • Phí phát sinh thêm người sống cùng

    ¥110/người/ngày (đã bao gồm thuế)
  • Phí điện nước gas

    Phí sử dụng ¥0 (đã bao gồm)
  • Trong trường hợp tòa nhà lắp đặt khóa Smartlock, phí hệ thống Smartlock sẽ được tính.

Địa chỉ

Nakagawa 2-5-12,Adachi-ku,Tokyo-to

  • Ngày công bố: 2026/01/14

  • Ngày cập nhật thông tin:2026/01/15

  • Ngày công bố: 2026/01/14

  • Ngày cập nhật thông tin:2026/01/15

Đăng ký, liên hệ thêm

Vui lòng liên hệ với chúng tôi nếu bạn có bất kỳ câu hỏi nào về các tòa nhà được liệt kê, hoặc nếu bạn muốn xem một tòa nhà hoặc tham khảo ý kiến ​​của chúng tôi.

+81 50-3652-6379+81 50-3652-6379

Mã tòa nhà55683Số phòng101

Thông tin liên hệ

  • Tên

    Trung tâm liên hệ quốc tế của Leopalace21
  • Địa chỉ hiện tại

    2-54-5 Honcho, Nakano-ku, Tokyo Leopalace21 Tòa nhà phụ tầng 2
  • Số điện thoại :

  • Số điện thoại :

  • Thời gian kinh doanh

    10:00 - 18:00
  • Mã số bằng lái xe

    Bộ trưởng Bộ Giao thông đất nước cấp phép (12) số 2846
  • Tổ chức liên kết

    (Công tài) Hiệp hội Quản lý Nhà cho thuê Nhật Bản. (Tổ chức công cộng) Liên hiệp Hiệp hội Quản lý Nhà cho thuê Toàn quốc.

Các phòng còn trống khác

  • ¥990,286 / Ngày 181

    ¥5,471 khoảng 1 ngàyT xếp hạng
    • 1K
    • 21.11㎡
    • Phòng 201
    CLEINO Sherlock Home Thiết kế
    CLEINO Sherlock Home Thiết kế

Cấu hỏi thường gặp

  • QCó mất phí môi giới hoặc tiền đặt cọc cho CLEINO Sherlock Home phòng101 không?
    A

    Tất cả tòa nhà do Leopalace21 quản lý đều không mất phí môi giới hoặc tiền đặt cọc.

  • QTôi muốn ký hợp đồng căn CLEINO Sherlock Home phòng 101, bước tiếp theo là gì?
    A

    Nếu bạn muốn ký hợp đồng trực tiếp, chúng tôi sẽ hoàn tất thủ tục hợp đồng tại cửa hàng thuộc Leopalace hoặc đối tác của Leopalace gần nơi bạn sống.
    Vui lòng đặt lịch tới cửa hàng theo link Nhấp vào đây.

    Nếu bạn muốn ký hợp đồng online, chúng tôi sẽ hoàn tất mọi thủ tục hợp đồng online qua Microsoft Teams.
    Vui lòng đăng ký nhà theo link Nhấp vào đây.