English
leopalace Lumiere Lotus Plotleopalace Lumiere Lotus Exteriorleopalace Lumiere Lotus Parking lot
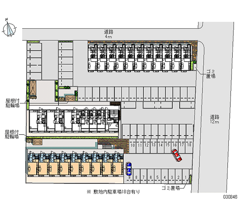
leopalace Lumiere Lotus Plot
leopalace Lumiere Lotus Exterior
leopalace Lumiere Lotus Parking lot

leopalace Lumiere LotusMonthly parking lot

Tenants

5,500(remaining 3 frames)

Non-residents

Contract not allowed

    • December 25 2025〜available
    • Hirasu-cho 1828-1105,Mito-shi,Ibaraki-ken
    • Joban line「Mitostation」Bus 37 minute Higashiyamadanchi get off and walk 4 minute

There are 0 people looking for parking in this city within a week!

Address

Hirasu-cho 1828-1105,Mito-shi,Ibaraki-ken

  • Information release date: 2025/12/25

  • Scheduled date of information update:2025/12/26

Inquiry

Please feel free to contact us with any questions or concerns regarding our parking lots.

Inquiry by e-mail
+81 50-3652-6379+81 50-3652-6379

Property number30846

Contact for inquiries

  • Name

    Leopalace21 International Contact Center
  • Location

    2-54-5 Honcho, Nakano-ku, Tokyo Leopalace21 Annex 2F
  • Phone Number:

  • Phone Number:

  • Business Hours

    10:00 - 18:00
  • License number

    Minister of Land, Infrastructure, Transport and Tourism Permit (12) No. 2846
  • Affiliated organization

    Japan Rental Housing Management Association National Federation of Rental Housing Managers' Associations

About published parking lot

  • “Tenants” are limited to customers who are currently residing in properties managed by Leopalace21.
  • If you are moving in with a monthly contract, the parking fee and contract method are different.
  • Your preferred parking lot may have terms and conditions.
  • In principle, the number of parking lots that can be contracted is one lot per person. If you would like to sign a contract for more than 2 lots, please contact the store in charge.